604 Wasson Street Nelson, British Columbia V1L 3G7
$825,000
Newly renovated and move-in ready, this versatile home in Lower Rosemont offers an ideal opportunity for investors, small families, or buyers seeking flexible work-from-home space. This beautifully updated 4 bed, 3 bath home offers breathtaking lake, mountain and Orange Bridge views that you'll enjoy every day from the kitchen, living room and spacious deck. Inside, the brand new kitchen shines with modern finishes, while the two main floor bathrooms have been completely renovated for a fresh, stylish feel. The main level includes a spacious primary bedroom with full ensuite, plus a second bedroom and full main floor bath-ideal for easy one level living. Stay cozy all winter with the charming wood stove in the bright, open concept lining room. Downstairs has also been recently renovated. Here you will find a family room, two piece bath with laundry, two additional rooms, which could be used as bedrooms or home offices. There is a handy workshop room, storage room and a large flex room, which could serve as a home gym, craft or hobby room. Outside, enjoy a private garden in the front and a terraced garden potential in the sloped backyard. A carport provides convenient covered parking, and you're just minutes from schools, groceries, the golf course, and a quick 20-minute walk to Baker St. Along with the mentioned updates there is also a new roof, new furnace and new perimeter drainage. This home is move in ready. Book your viewing today and fall in love with Rosemont living. (id:61291)
Property Details
| MLS® Number | 10372622 |
| Property Type | Single Family |
| Neigbourhood | Nelson |
| Features | Balcony |
| View Type | Lake View, Mountain View |
Building
| Bathroom Total | 3 |
| Bedrooms Total | 4 |
| Constructed Date | 1950 |
| Construction Style Attachment | Detached |
| Exterior Finish | Vinyl Siding |
| Fireplace Present | Yes |
| Fireplace Total | 1 |
| Fireplace Type | Free Standing Metal |
| Flooring Type | Hardwood, Vinyl |
| Heating Type | Forced Air |
| Roof Material | Metal |
| Roof Style | Unknown |
| Stories Total | 2 |
| Size Interior | 2,208 Ft2 |
| Type | House |
| Utility Water | Government Managed |
Parking
| Carport |
Land
| Acreage | No |
| Sewer | Municipal Sewage System |
| Size Irregular | 0.23 |
| Size Total | 0.23 Ac|under 1 Acre |
| Size Total Text | 0.23 Ac|under 1 Acre |
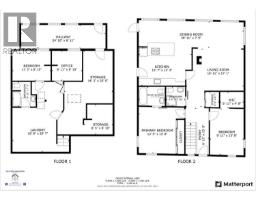
Rooms
| Level | Type | Length | Width | Dimensions |
|---|---|---|---|---|
| Lower Level | Storage | 8'10'' x 8'5'' | ||
| Lower Level | Hobby Room | 24'10'' x 6'11'' | ||
| Lower Level | Workshop | 14'3'' x 20'0'' | ||
| Lower Level | Bedroom | 8'11'' x 8'10'' | ||
| Lower Level | Bedroom | 11'3'' x 8'10'' | ||
| Lower Level | Full Bathroom | 7'3'' x 6'11'' | ||
| Lower Level | Family Room | 20'7'' x 16'8'' | ||
| Main Level | Bedroom | 13'8'' x 9'11'' | ||
| Main Level | Full Bathroom | 5'8'' x 5'10'' | ||
| Main Level | Full Ensuite Bathroom | 5'8'' x 7'9'' | ||
| Main Level | Primary Bedroom | 13'8'' x 13'5'' | ||
| Main Level | Dining Room | 30'11'' x 7'9'' | ||
| Main Level | Living Room | 17'1'' x 16'11'' | ||
| Main Level | Kitchen | 11'3'' x 15'7'' |
https://www.realtor.ca/real-estate/29261606/604-wasson-street-nelson-nelson
Contact Us
Contact us for more information
Heather Holdener
593 Baker Street
Nelson, British Columbia V1L 4J1
(250) 352-3581
(250) 352-5102
































































































































































