4280 Red Mountain Road Unit# 417 Rossland, British Columbia V0G 1Y0

1 Bedroom 2 Bathroom 706 ft2
Heat Pump Baseboard Heaters, Heat Pump

$624,900

Maintenance, Heat, Insurance, Ground Maintenance, Other, See Remarks, Recreation Facilities, Waste Removal

$433.55 Monthly

Summer is calling—and this loft is your basecamp. Step out your door and straight into the action, with world-class riding at RED Mountain Resort and endless hiking trails just minutes away. After a full day outside, unwind with unobstructed mountain views and unforgettable sunset skies right from your window. Built for year-round adventure, this bright, spacious home blends comfort with function. Keep your EV cool and ready in the secure underground parkade, and stash bikes and gear in your dedicated locker right at your door—no hauling through your living space. Inside, the vaulted loft delivers both space and privacy, comfortably sleeping up to six. With 1.5 bathrooms and air conditioning, it’s perfectly set up for hosting your crew in every season. Enjoy access to premium shared amenities, including a full kitchen and lounge, outdoor BBQ patio with front-row views of RED Mountain Resort, fitness room, workspace, secure bike storage, and on-site retail—everything you need, all in one building. Lock in your own getaway dates, rent the rest, or keep it all to yourself—the choice is yours. (id:61291)

Property Details

MLS® Number 10370274
Property Type Single Family
Neigbourhood Rossland
Community Name The Crescent
Community Features Recreational Facilities, Pets Allowed With Restrictions
Parking Space Total 1
Storage Type Storage, Locker
View Type Mountain View

Building

Bathroom Total 2
Bedrooms Total 1
Amenities Laundry - Coin Op, Recreation Centre, Security/concierge, Storage - Locker
Constructed Date 2024
Cooling Type Heat Pump
Half Bath Total 1
Heating Type Baseboard Heaters, Heat Pump
Roof Material Other
Roof Style Unknown
Stories Total 2
Size Interior 706 Ft2
Type Apartment
Utility Water Municipal Water

Parking

Heated Garage
Parkade
Underground

Land

Acreage No
Sewer Municipal Sewage System
Size Total Text Under 1 Acre

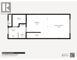
Rooms

Level Type Dimensions
Second Level Partial Bathroom 3'1'' x 7'9''
Second Level Primary Bedroom 12'10'' x 13'5''
Main Level Other 6'4'' x 3'11''
Main Level Living Room 11'11'' x 9'11''
Main Level Laundry Room 4'3'' x 3'3''
Main Level Kitchen 12'6'' x 13'5''
Main Level Other 10'1'' x 3'10''
Main Level Other 4'0'' x 2'0''
Main Level Other 5'6'' x 2'4''
Main Level Full Bathroom 7'6'' x 6'8''

https://www.realtor.ca/real-estate/29160272/4280-red-mountain-road-unit-417-rossland-rossland

Contact Us

Contact us for more information

Generating Captcha

Moka Webster

(250) 513-0030

Mountain Town Properties Ltd.
2020 Washington Street,
Rossland, British Columbia V0G 1Y0

(250) 368-7166
www.mountaintownproperties.ca/

Your Favourites

 

No Favourites Found